Site Plans & Architectural Studies
Site Section Development
Reiulf Ramstad Development Sketch
Hiort Site Plan
Site Plans and Architectural Drawings - Dualchas Architects & Reiulf Ramstad Arkitektur (Oslo)
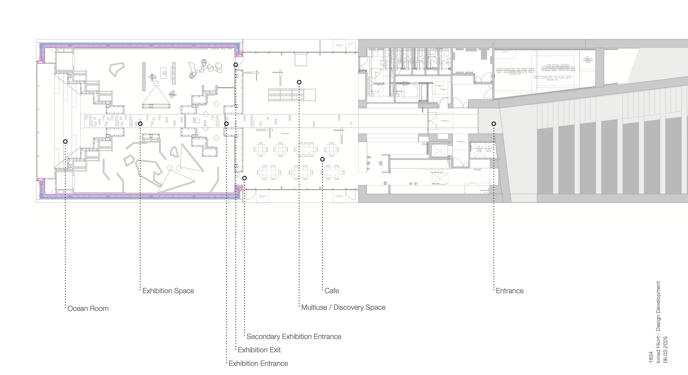
Layout
Site Section Development
Reiulf Ramstad Development Sketch
Hiort Site Plan
Site Plans and Architectural Drawings - Dualchas Architects & Reiulf Ramstad Arkitektur (Oslo)
Layout